首页
光伏安装图纸变量表怎么看
返回

光伏安装图纸变量表怎么看

2023-11-27 综合百科 By:佚名
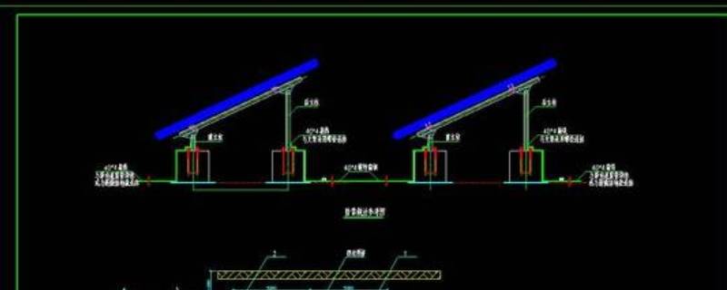
最佳答案1、图纸中会标注出各个部件的尺寸,一般是用毫米或英寸表示。尺寸标注可以帮助制造商确定材料的大小和数量。2、图纸中会标注出产品的结构,包括各个部件之间的连接方式和装配顺序。这些信息可以帮助制造商组装产品并确保其正常运行。3、图纸中会标注出各个部件使用的材料,包括金属、塑料、玻璃等。...

1、图纸中会标注出各个部件的尺寸,一般是用毫米或英寸表示。尺寸标注可以帮助制造商确定材料的大小和数量。

2、图纸中会标注出产品的结构,包括各个部件之间的连接方式和装配顺序。这些信息可以帮助制造商组装产品并确保其正常运行。

3、图纸中会标注出各个部件使用的材料,包括金属、塑料、玻璃等。这些信息可以帮助制造商选择正确的材料并确保产品的质量。

4、图纸中会标注出产品的组件,包括电池板、逆变器、电缆等。这些信息可以帮助制造商选择正确的组件并确保产品的性能。

猜你喜欢
architect什么意思(arc什么意思)

architect什么意思(arc什么意思)

01-02 0 阅读
怎样去除大米里的小黑虫

怎样去除大米里的小黑虫

07-15 0 阅读
康师傅系列方便面有哪些口味

康师傅系列方便面有哪些口味

09-06 0 阅读
我这个直播间动不动就被禁言了,用AI直播间有用吗?

我这个直播间动不动就被禁言了,用AI直播间有用吗?

11-01 0 阅读
benq投影仪ms614支持无线吗

benq投影仪ms614支持无线吗

12-12 0 阅读
中心公园(关于中心公园的基本详情介绍)

中心公园(关于中心公园的基本详情介绍)

12-31 0 阅读
热门推荐
杨志兰(关于杨志兰的简介)

杨志兰(关于杨志兰的简介)

01-01 0 阅读
奥肯能胶囊说明书

奥肯能胶囊说明书

10-31 0 阅读
深圳建行信用卡中心地址(深圳建行信用卡)

深圳建行信用卡中心地址(深圳建行信用卡)

01-03 0 阅读
星际战甲亡魂爆燃喷射器怎么得(星际战甲亡魂爆燃喷射器怎么获得)

星际战甲亡魂爆燃喷射器怎么得(星际战甲亡魂爆燃喷射器怎么获得)

12-30 0 阅读
杜威全集·中期著作·第八卷(1915)(关于杜威全集·中期著作·第八卷(1915)的简介)

杜威全集·中期著作·第八卷(1915)(关于杜威全集·中期著作·第八卷(1915)的简介)

12-31 0 阅读
绝命毒师第五季(关于绝命毒师第五季的基本详情介绍)

绝命毒师第五季(关于绝命毒师第五季的基本详情介绍)

01-01 0 阅读
李清照传:煮酒笺花 人归何处(关于李清照传:煮酒笺花 人归何处的简介)

李清照传:煮酒笺花 人归何处(关于李清照传:煮酒笺花 人归何处的简介)

12-31 0 阅读
百变五侠(关于百变五侠的基本详情介绍)

百变五侠(关于百变五侠的基本详情介绍)

01-02 0 阅读
华山(关于华山的基本详情介绍)

华山(关于华山的基本详情介绍)

12-31 0 阅读
本地泡核桃(关于本地泡核桃的简介)

本地泡核桃(关于本地泡核桃的简介)

01-01 0 阅读